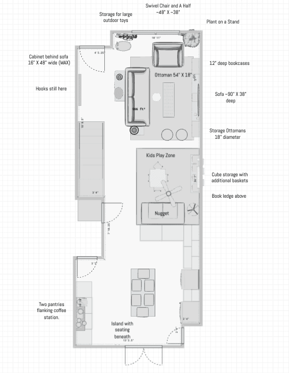
You have places for things, they're just nowhere near where things actually land. Our Home Flow Plan designs the layout and storage as one system, so the furniture supports the flow, the zones match your stuff, and things stop piling up between where they land and where they "belong."
Three rooms, one cohesive plan. Making your home work for the way you live.
More Services
Explore Other Services
Commercial Services
For Your Own Home
Planning & Layout Services
How This Works
1. 3 Room Intake You send us photos, measurements, and an honest look at what you own and where it ends up. We look at how your rooms connect. Not just whats wrong in each one, but where the friction actually lives. (No judgment. We have seen it all.)
2. Strategy Call 90 minutes to map priorities, talk about how your household actually moves, and decide what gets fixed first.
3. Multi-Zone Plan You get a connected plan across 3 rooms with zones mapped out. Layout, storage, flow, and a phased roadmap so you can tackle it in stages.
4. We Refine It Two rounds. Because when you see how one room changes, you always want to adjust the next.
What You Walk Away With
A Connected System Rooms that support each other instead of competing.
Priority Zones You know what to fix first and why it matters most.
A Phased Roadmap So you don't have to do it all at once. (That never works anyway.)
Clarity Across the Whole Home The big picture, finally livable.
When This Is the Right Fit
You get your 10k steps in just resetting your home and it still feels chaotic.
You have more stuff than places to put it and no clue where to start.
Every room is slightly off and fixing one doesn't fix the feeling.
You want a plan for the whole house, not just one corner of it.
When You Work With Virmae
You can expect:
Clarity You see how your home connects, not just how each room sits alone.
Efficiency One plan. Phased. No starting over every time.
Confidence You know the order, the priority, and the why.
Intentional Design A home that flows, not just a collection of rooms.
Starting at $1499
How This Works
1. 3 Room Intake You send us photos, measurements, and an honest look at what you own and where it ends up. We look at how your rooms connect. Not just whats wrong in each one, but where the friction actually lives. (No judgment. We have seen it all.)
2. Strategy Call 90 minutes to map priorities, talk about how your household actually moves, and decide what gets fixed first.
3. Multi-Zone Plan You get a connected plan across 3 rooms with zones mapped out. Layout, storage, flow, and a phased roadmap so you can tackle it in stages.
4. We Refine It Two rounds. Because when you see how one room changes, you always want to adjust the next.
What You Walk Away With
A Connected System Rooms that support each other instead of competing.
Priority Zones You know what to fix first and why it matters most.
A Phased Roadmap So you don't have to do it all at once. (That never works anyway.)
Clarity Across the Whole Home The big picture, finally livable.
When This Is the Right Fit
You get your 10k steps in just resetting your home and it still feels chaotic.
You have more stuff than places to put it and no clue where to start.
Every room is slightly off and fixing one doesn't fix the feeling.
You want a plan for the whole house, not just one corner of it.
When You Work With Virmae
You can expect:
Clarity You see how your home connects, not just how each room sits alone.
Efficiency One plan. Phased. No starting over every time.
Confidence You know the order, the priority, and the why.
Intentional Design A home that flows, not just a collection of rooms.
Starting at $1499
Still Deciding? Three rooms, one system. Let's map it out.
Still Deciding? Three rooms, one system. Let's map it out.
Book a Free Intro Call
Not sure yet? Send us a note.
Still Deciding? Three rooms, one system. Let's map it out.
Book a Free Intro Call
Not sure yet? Send us a note.

Photo Gallery
Explore Samples
Discover our past projects to find inspiration and ideas for your own landscaping needs.
Photo Gallery
Explore Samples
Discover our past projects to find inspiration and ideas for your own landscaping needs.








Frequently Asked Questions
You've got questions, we've got answers.
Discover more about our services and policies with our Frequently Asked Questions section.
Frequently Asked Questions
You've got questions, we've got answers.
Discover more about our services and policies with our Frequently Asked Questions section.
Frequently Asked Questions
You've got questions, we've got answers.
Discover more about our services and policies with our Frequently Asked Questions section.
Question
Answer
What if I don't know my style?
Question
Answer
How much does it cost to furnish a room?
Question
Answer
How do you work with open concept rooms?
Question
Answer
How long does a project take to complete?
Question
Answer
What do you offer once the design plan is complete?
Question
Answer




